Продава 3-СТАЕН апартамент Гръцка махала, Варна

Галерия със снимки
  • Тристаен
    155 m2
    bedroom 2 Спални
    bathroom 1 Бани
  • € 230,000
    Статус на оферта: Актуално
    Година на построяване: 2024
  • Етаж: 4
    Етажи в сградата: 8
    Състояние: Необзаведено
    Строистелство: Тухлено строителство
  • Статус на обекта: Завършено
  • elevatorАсансьор
    parkingПаркомясто
 Описание
Бутикова сграда 2024г. Изложение - Изток. Опция за закупуване на паркомясто.
Най- актуалните Имоти са samhome.bg Реф. Номер: 35422
Отлична локация в непосредствена близост до: Ритуална зала Варна, Държавна опера Варна, Градски часовник Варна. На пешеходно разстояние от Морска градина.
Автобусна спирка: 300м.
Международно летище: 10км.
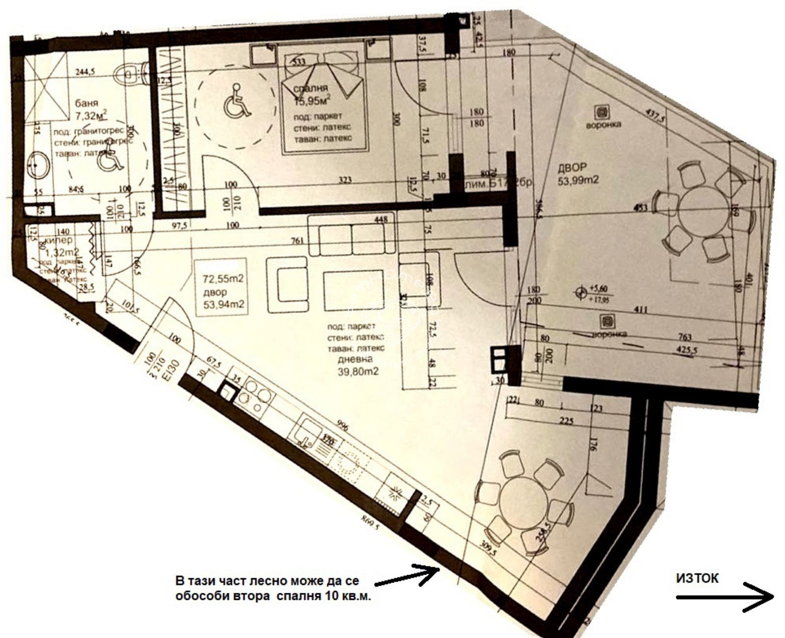
Описание на имота: 
Всекидневна с кухненски бокс - 30кв.м.
Спалня 1 - 18кв.м.
Спалня 2 - 12кв.м.
Баня с тоалет - 8кв.м.
Просторна тераса - 70кв.м.
Общи части - 17кв.м.
Чиста Жилищна Площ: 73кв.м.
Състояние: Завършено до ключ.
Сграда: Монолитно тухлено строителство.
Предимства: В близост до всички централни точки. Ново строителство. Сградата разполага с асансьор. Опция за закупуване на паркомясто в сградата. Към имота се прилага примерен проект с точни размери и интериорно решение отлична основа за бъдещото обзавеждане.
Недостатъци: Необзаведен.
Моля цитирайте реф. номер когато се обадите.
Ние ще Ви обърнем внимание и ще вникнем в детайлите на Вашето търсене заповядайте на среща с брокер в Нашият уютен офис. Комплимент за всеки закупен имот Нашите клиенти получават застраховка имущество за една година!
САМ ХОУМ е агенция създадена от брокери с над 15 годишен опит в сферата на недвижимите имоти, нашата цел е да Ви предоставим качествено обслужване, на което ние бихме се радвали, ако сме Ваши клиенти.
 Локация

 За Имота

Преглед
Продава 3-СТАЕН апартамент Гръцка махала, Варна Продажба
€ 230,000
Град: Варна
Регион: Гръцка махала
Държава: България
Пощенски код: 9000
Референтен номер: 35422

 Съобщение

10 X 10 = ?
Top