Фотогалерея
Gallery Image
Gallery Image
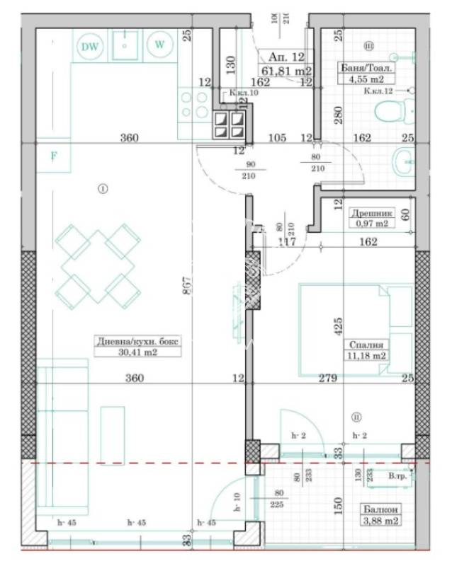
  • DBC TYPE TWOROOMS
    72 m2
    bedroom 1 спальни
    bathroom 1 баня
  • € 136,300
    статус: доступный
    Год постройки: 2025
  • Floor: 3
    Total Floors: 10
    Furnishing: БДС
    Construction Type: Brickbuilt
  • Construction Status: In Construction
    Heating: Electrical Heating
  • elevatorElevator
 описание

 резюме

обзор
продажа
€136300.00
город: Варна
Штат / провинция: Левски
страна: България
Почтовый Индекс: 9000

 агент