DBC PURPOSE NIGHT MENU
Агенты
Carier
DBC PARTNERS
тип
DBC TYPE ONEROOM
DBC TYPE TWOROOMS
DBC TYPE THREEROOMS
DBC TYPE FOURROOMS
DBC TYPE MANYROOMS
DBC TYPE OFFICE
DBC TYPE SHOP
DBC TYPE PLACE
DBC TYPE HOTEL
DBC TYPE STORE
DBC TYPE FACTORY
земля
дом
квартира
DBC TYPE GARAGE
DBC TYPE PARK PLACE
торговые площади
DBC TYPE WORKING
продажа
аренда
Продажа и аренда
English
Russian
German
Bulgarian
домой
Properties
DBC PURPOSE SALES
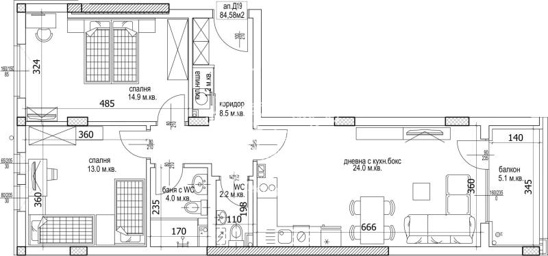
DBC TYPE THREEROOMS DBC TYPE SEO APARTMENT Варна
Фотогалерея
Поделиться этой:
DBC TYPE THREEROOMS
99
m
2
2
спальни
2
баня
продажа
€ 132,026
статус:
доступный
Год постройки:
2028
Floor:
4
Total Floors:
9
Furnishing:
БДС
Construction Type:
Brickbuilt
Construction Status:
In Construction
описание
Локация
←
→
резюме
обзор
продажа
€ 132,026
город:
Варна
Штат / провинция:
Кайсиева Градина
страна:
България
Почтовый Индекс:
9000
Reference Number:
35008
агент
Пламен Тодоров
+359877775858
broker6@samhome.bg
140 Properties
сообщение
имя:
телефон:
Email:
Тема электронного письма:
сообщение:
8 - 2 = ?
×
Код Предпросмотр:
Top